Skip Content

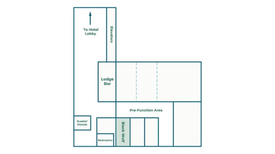
BLACK WOLF


Room Size (Sq. Ft)

700

Max Room Capacity (People)

60

Complimentary high speed wireless Internet access

Our meeting spaces are configurable

You can select your favorite room layout from the options available for this meeting space. The room capacity may vary between the room layout options.

Classroom
Classroom
Room Capacity (People): 36
Banquet
Banquet
Room Capacity (People): 50
Theater
Theater
Room Capacity (People): 60
U-Shape
U-Shape
Room Capacity (People): 21
Reception
Reception
Room Capacity (People): 60
Hollow Square
Hollow Square
Room Capacity (People): 26

We are ready to help!